AC-100-1L lofttjakkur heavy duty 100t
Heavy duty línan eru alvöru tjakkar fyrir þyngstu tækin í bransanum. Ætlaður fyrir námu- og stórbyggingaiðnaðinn.
Stór loftgúmmíhjól gera færslu á tjakknum auðvelda á ójöfnu undirlagi.
- Lægsta lyftihæð er 460mm ofan á lyftipunkt
- Lyftir 100tonnum í 595mm
- Eiginþyngd 355kg
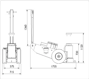
- – Öll helstu mál má sjá á mynd hér til hliðar.
- Handfang læsanlegt í nokkrum hallastillingum
- Nýtt og endurbætt handfang frá fyrri árgerðum, nú eru þrýstihnappar í stað sveifar.
- Þrýstiloft þarf til þess að nota tjakkinn, kjörþrýstingur 8 – 12bör.
- “Dead mans release” = Ekki hægt að slaka svo hratt að bíll detti hratt niður.
- Innbyggður öryggisloki sem leyfir tjakknum ekki að lyfta meiri þyngd en uppgefið er.
- Framlengingar eru fáanlegar sem aukahlutur
- Læsihringir eru fáanlegir sem aukahlutir, “Búkkahringir” sem hægt er að slaka ofan á fyrir aukið öryggi.
Allar vörur frá AC eru framleiddar í Danmörku, þetta er þeirra stolt og gera þeir sitt besta í því að láta framleiða íhluti og annað innanhúss.
3ja ára ábyrgð er á öllum hlutum en upp í 10 ára ábyrgð á völdum hlutum, eins og td. grindar og burðarhlutum.
Sjá hér um ábyrgð AC: http://www.ac-hydraulic.dk/en/sales-and-technical-literature/warranty/











